這里是領控智能影院系統施工布線指導手冊指導文件,僅供參考,具體實施請和提供商確認。
LK-HC100影院控制系統拓撲圖
LK-HC200影院控制系統拓撲圖(帶LEA600面板版本)
LK-HC200影院控制系統拓撲圖(帶TPN-K8/F面板版本)
2.4G/433天線延長線布線示意圖
2.4G延長線布線說明:
1:.主機與遙控器通訊空曠距離10米信號穩定,通訊距離超過10米,或者主機與影音室未在一個房間中間有阻擋物,需提前布2.4的延長天線至影音室內。
2.布線方式:天線延長線內螺內孔端放置在影音中控主機一端,延長線外螺內針一端放置在影音室幕布后方懸空即可。
433延長線布線說明:
1.主機與無線面板/無線調光模塊通訊空曠距離15米信號文檔,通訊距離超過15米,或者主機與影音室未在一個房間,中間有阻擋物,需提前布433m的延長天線至影音室內。
2.布線方式:天線延長線內螺內針端放置在影音中控主機一端,延長線外螺內孔一端放置在影音室幕布后方懸空即可。
IFC-RM延長線布線示意圖
IFC-RM延長線布線說明: 1.機柜與影音室相隔距離超過10米,或 者主機與影音室未在一個房間中間有阻 擋物,需提前布網線至影音室內。 2.布線說明:IFC-RM模塊一般放置于投 影機上方(如果使用電視則放置與電視 背后),則需要從主機處布置一條網線 到投影(電視)。
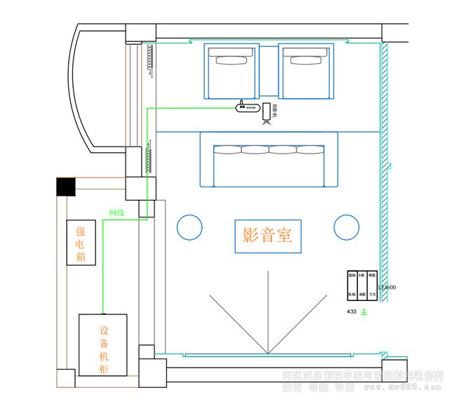
影院弱電施工布線示意圖(帶LEA600面板版本)

備注:弱電布線說明 1.投影儀1根網線到主機。 2.有窗簾/幕布需要控制需從窗簾電機處布一根網線到中控主機位置,窗簾或幕布需支持干接點控制方式 3.帶紅外遙控器控制的空調如需接入系統控制,從空調內機處布一根網線到主機,通過紅外接入控制,布線距離不宜超過20 米。4.人體感應探頭處布一根網線至主機處,通過主機后INPUT端口接入系統控制。 5.影音中控主機處需1根連接外網的網線。
6.主機與影音室不在一個房間需預留2.4G和433M天線延長線至影音室幕布后方。
注:以上布線根據現場實際設備進行布線,沒有窗簾/空調/感應等設備不需要布相應的控制線。
影院弱電施工布線示意圖(帶TPN-K8/F面板版本)

備注:弱電布線說明 1.投影儀1根網線到主機。 2.有窗簾/幕布需要控制需從窗簾電機處布一根網線到中控主機位置,窗簾或幕布需支持干接點控制方式 3.帶紅外遙控器控制的空調如需接入系統控制,從空調內機處布一根網線到主機,通過紅外接入控制,布線距離不宜超過20 米。4.人體感應探頭處布一根網線至主機處,通過主機后INPUT端口接入系統控制。 5.影音中控主機處需1根連接外網的網線。
6.主機與影音室不在一個房間需預留2.4G和433M天線延長線至影音室幕布后方。
7.面板到主機處布一根網線做RS485通訊線。
注:以上布線根據現場實際設備進行布線,沒有窗簾/空調/感應等設備不需要布相應的控制線。
影院燈光只控制開關施工布線示意圖(帶TPN-K8/F面板版本)

備注:強電布線說明
1.進門口TPN-K8/F面板處預留零線火線供 電線。
2.每路燈光回路只控制火線,布線時需將每一路需要控制的燈具火線單獨到 TPN-K8/F面板處。燈具零線可直接從配電 箱中布線到燈具。
影院燈光只控制開關施工布線示意圖(帶LEA600面板版本)
備注:強電布線說明
1.進門口LEA600面板處預留零線火線供電 線。
2.每路燈光回路只控制火線,布線時需將 每一路需要控制的燈具火線單獨到LEA600 面板處。燈具零線可直接從配電箱中布線 到燈具。
影院調光施工布線示意圖
備注:調光布線說明
1.燈具零線火線從強電箱到燈具。
2.需要調光的每一路筒燈、燈帶單獨1根 2*0.5的RVV控制線到設備機柜。
影院調色溫施工布線示意圖
備注:雙色溫調光布線說明
1.燈具零線火線從強電箱到燈具。
2.需要調色溫的每一路筒燈、燈帶單獨1根4*0.5的RVV控制線到設備機柜。
LEA600面板接線示意圖

接線說明:
1.LEA600面板為AC220V供電,LN端口接入220V電壓。
2.L1/L2/L3端口分別接入3路燈光負載的火線。
3.燈光的零線不接入LEA600面板,可直接到強電箱。
LEA600面板大功率負載接線示意圖
接線說明: 1.當負載功率超過LEA600面板的額定負載 時需要接入交流接觸器來實現小電流控制 大電流設備。
控制原理:
1.LEA600面板控制交流接觸器的電源。
2.交流接觸器控制大功率設備的火線。
TPN-K8/F面板接線示意圖

接線說明:
1.TPN-K8/F面板為AC220V供電,LN端口接入220V電壓。
2.L1/L2/L3/L4端口分別接入4路燈光負載的火線。
3.燈光的零線不接入TPN-K8/F面板,可直接到強電箱。
TPN-K 8/F面板大功率負載接線示意圖

接線說明:
1.當負載功率超過TPN-K8/F面板的額定負載時需要接入交流接觸器來實現小電流控制大電流設備。
控制原理:
1.TPN-K8/F面板控制交流接觸器的電源,
2.交流接觸器控制大功率設備的火線。
LRC302模塊接調色溫燈帶接線示意圖

接線說明:
1.LRC調光模塊LN端接入220V強電供電。
2.CCT表示色溫調節/DIM表示調光分別對 應接驅動電源的CCT和DIM。
3.DIM-對應接驅動電源的信號負極。
LRC302模塊接調光筒燈接線示意圖

接線說明:
1.LRC調光模塊LN端接入220V強電供電。
2.DIM+/DIM-為第一路調光對應接驅動電源的0-10V輸入正負極。
3.CCT+/DIM-為第二路調光對應接驅動電源的0-10V輸入正負極。
LRC302模塊接調光燈帶接線示意圖
接線說明:
1.LRC調光模塊LN端接入220V強電供電。
2.DIM+/DIM-為第一路調光對應接驅動電源的0-10V輸入正負極。
3.CCT+/DIM-為第二路調光對應接驅動電源的0-10V輸入正負極。
LRC302模塊接調色溫筒燈接線示意圖

接線說明:
1.LRC調光模塊LN端接入220V強電供電。
2.CCT表示色溫調節/DIM表示調光分別對 應接驅動電源的CCT和DIM。
3.DIM-對應接驅動電源的信號負極。
1. 面板自帶4路負載輸出,可接入四路燈具進行控制
2. 面板和主機之間為有線485通訊, 可用超五類/超六類網線制作控制線
3.485接線要求直連接線,A-A,B-B,GND-GND

切換方式:長按按鍵12秒,按至按鍵背光燈熄滅即可
模式一: 長按①號“進場”, 面板按鍵全部為場景按鍵,需要在調試軟件上定義按鍵功能
模式二: 長按②號“離場”, 面板⑤⑥⑦⑧號按鍵分別對應后面繼電器端口開關,①②③④按鍵為場景按鍵,需在調試軟件上自定義功能。
模式三: 長按③號“觀影”, ⑦⑧“全開/全關”為面板繼電器的全部打開/關閉,其余按鍵為場景按鍵,需在調試軟件添加場景上定義功能。










